

ZDLM电子式电动套筒调节阀,是由直行程全电子式电动执行机构和直通低流阻平衡型套筒阀组成。具有结构紧凑、重量轻、动作灵敏、流体通道呈S流线型、压降损失小、阀容量大、流量特性精确,直接接受调节仪表输入的(4-20mA DC 0-10mA DC或1-5V DC)等控制信号及单相电源即可控制运转,实现对工艺管路流体介质的自动调节控制,广泛应用于精确控气体、液体、蒸汽等介质的工艺参数如压力、流量、温度、液位等参数保持在给定值。是符合IEC标准的新一代通用调节阀产品。


|
型号
|
输出推力N
|
速度mm/s
|
最大行程(mm)
|
型号
|
输出推力N
|
速度mm/s
|
最大行程(mm
|
|
381LSA-08
381LXA-08 |
800
800 |
4.2
4.2 |
30
|
PSL201
|
1000
|
0.4/1.2
|
50
|
|
381LSA-20
381LXA-20 |
2000
2000 |
2.1
2.1 |
30
|
PSL202
|
2000
|
0.4/1.2
|
50
|
|
381LSB-30
381LXB-30 |
3000
3000 |
3.5
3.5 |
60
|
PSL204
|
4500
|
0.4/1.2
|
50
|
|
381LSB-50
381LXB-50 |
5000
5000 |
1.7
1.7 |
60
|
PSL208
|
8000
|
1.0
|
50
|
|
381LSC-65
|
6500
|
2.8
|
100
|
PSL210
|
10000
|
1.0
|
50
|
|
381LSC-99
|
10000
|
2.0
|
100
|
PSL312
|
12000
|
1.0
|
65
|
|
381LSC-160
|
16000
|
1.0
|
100
|
PSL325
|
25000
|
1.0
|
100
|
|
(信号线用屏蔽线) 防护等级:相当IP55 隔爆标志:ExdⅡBT4 带手柄
|
(信号线用屏蔽线) 防护等级:IP65 带手轮
|
||||||
|
项目
|
指标值
|
||
|
基本误差%
|
381L ±2.5; PSL±1.0
|
||
|
回差%
|
381L ±2.0; PSL±1.0
|
||
|
死区%
|
1.0
|
||
|
始终点偏差%
|
电开
|
始点
|
±2.5
|
|
终点
|
±2.5
|
||
|
电关
|
始点
|
±2.5
|
|
|
终点
|
±2.5
|
||
|
可调范围
|
50:1
|
||
|
额定行程偏差%
|
2.5
|
||
|
公称通径(mm)
|
25
|
32
|
40
|
50
|
65
|
80
|
100
|
125
|
150
|
200
|
250
|
300
|
||
|
阀座直径(mm)
|
25
|
32
|
40
|
50
|
65
|
80
|
100
|
125
|
150
|
200
|
250
|
300
|
||
|
执行机构
|
允许压差△P(MPa)
|
|||||||||||||
|
配PSL
|
PSL202
|
6.4
3.14 |
6.4
1.92 |
6.4
1.23 |
5.1
0.78 |
|
|
|
|
|
|
|
|
|
|
PSL204
|
|
4.31
|
2.76
|
1.76
|
6.4
1.04 |
6.4
0.69 |
5.62
0.44 |
|
|
|
|
|
||
|
PSL208
|
|
|
|
|
1.86
|
1.23
|
0.78
|
6.4
0.50 |
5.31
0.35 |
3.97
0.20 |
|
|
||
|
PSL320
|
|
|
|
|
|
|
|
1.26
|
0.87
|
0.49
|
6.4
0.32 |
4.14
0.22 |
||
|
配361L
|
381LSA-20
|
6.4
3.14 |
6.4
1.92 |
6.4
1.23 |
6.4
0.78 |
|
|
|
|
|
|
|
|
|
|
381LSB-50
|
|
|
|
|
6.4
1.16 |
6.4
0.76 |
6.25
0.49 |
|
|
|
|
|
||
|
381LSC-65
|
|
|
|
|
|
|
|
6.4
0.64 |
4.32
0.41 |
3.23
0.28 |
|
|
||
|
381LSC-99
|
|
|
|
|
|
|
|
0.63
|
0.44
|
0.25
|
3.31
0.16 |
0.27
0.11 |
||
主要零件材料及适用温度、介质
|
公称通径(mm)
|
25
|
32
|
40
|
50
|
65
|
80
|
100
|
125
|
150
|
200
|
250
|
300
|
||
|
阀座直径(mm)
|
25
|
32
|
40
|
50
|
65
|
80
|
100
|
125
|
150
|
200
|
250
|
300
|
||
|
执行机构
|
允许压差△P(MPa)
|
|||||||||||||
|
配PSL
|
PSL202
|
6.4
3.14 |
6.4
1.92 |
6.4
1.23 |
5.1
0.78 |
|
|
|
|
|
|
|
|
|
|
PSL204
|
|
4.31
|
2.76
|
1.76
|
6.4
1.04 |
6.4
0.69 |
5.62
0.44 |
|
|
|
|
|
||
|
PSL208
|
|
|
|
|
1.86
|
1.23
|
0.78
|
6.4
0.50 |
5.31
0.35 |
3.97
0.20 |
|
|
||
|
PSL320
|
|
|
|
|
|
|
|
1.26
|
0.87
|
0.49
|
6.4
0.32 |
4.14
0.22 |
||
|
配361L
|
381LSA-20
|
6.4
3.14 |
6.4
1.92 |
6.4
1.23 |
6.4
0.78 |
|
|
|
|
|
|
|
|
|
|
381LSB-50
|
|
|
|
|
6.4
1.16 |
6.4
0.76 |
6.25
0.49 |
|
|
|
|
|
||
|
381LSC-65
|
|
|
|
|
|
|
|
6.4
0.64 |
4.32
0.41 |
3.23
0.28 |
|
|
||
|
381LSC-99
|
|
|
|
|
|
|
|
0.63
|
0.44
|
0.25
|
3.31
0.16 |
0.27
0.11 |
||
|
公称通径mm
|
DN15-DN300
|
|||
|
材料代号
|
C(WCB)
|
P(304)
|
R(316)
|
|
|
主要
零件
|
阀体、阀盖
|
WCB(ZG230-450)
|
ZG1Cr18Ni9Ti(304)
|
ZG1Cr18Ni12Mo2Ti(316)
|
|
阀芯、阀座
|
1Cr18Ni9Ti(304)或司钛莱合金堆焊
|
1Cr18Ni9Ti(304)或司钛莱合金堆焊
|
1Cr18Ni12Mo2Ti(316)或司钛莱合金堆焊
|
|
|
阀杆
|
2Cr13
|
1Cr18Ni9Ti
|
1Cr18Ni12Mo2Ti
|
|
|
填料
|
V型聚四氟乙烯(F4)、柔性石墨、不锈钢波纹管
|
|||
|
垫片
|
增强聚四氟乙烯(F4) 、不锈钢垫片、金属石墨缠绕垫片
|
|||
|
推杆、衬套
|
2Cr13
|
|||
|
适用
工况
|
适用介质
|
水蒸汽油品类气液体
|
硝酸碱类腐蚀性气液体
|
醋酸类等腐蚀性气液体
|
|
常温型
|
-30~+250 F4:≤200℃
|
-40~+250 F4:≤200℃
|
-40~+250℃ F4:≤200℃
|
|
|
高温型
|
-30~+450℃
|
-40~+500℃
|
-40~+500℃
|
|
|
低温型
|
|
-40~-60℃、 -60~-100℃
|
||
|
公称通径mm
|
20
|
25
|
32
|
40
|
50
|
65
|
80
|
100
|
125
|
150
|
200
|
250
|
300
|
|||
|
阀座直径mm
|
20
|
25
|
32
|
40
|
50
|
65
|
80
|
100
|
125
|
150
|
200
|
250
|
300
|
|||
|
额定流量
系数Kv |
直线
|
6.9
|
11
|
17.6
|
27.5
|
44
|
69
|
110
|
176
|
275
|
440
|
690
|
1100
|
1760
|
||
|
等百分比
|
6.3
|
10
|
16
|
25
|
40
|
63
|
100
|
160
|
250
|
400
|
630
|
1000
|
1600
|
|||
|
额定行程L(mm)
|
10
|
16
|
25
|
40
|
60
|
100
|
||||||||||
|
执行器型号
|
3810L
|
381LS-8
|
381LS-20
|
381LS-30
|
381LS-50
|
381LS-65
|
381LS-99
|
|||||||||
|
PSL
|
PSL201
|
PSL202
|
PSL204
|
PSL208
|
PSL312
|
PSL325
|
||||||||||
|
|
防爆型
|
381LX-20
|
381LX-30
|
381LX-50
|
381LX-65
|
381LX-99
|
||||||||||
|
电源电压
|
AC220V 50Hz
|
|||||||||||||||
|
信号范围
|
4~20mA DC 0~10mA DC或1~5V DC 0~10V DC
|
|||||||||||||||
|
作用模式
|
电开式(K)型、电闭式(B)型
|
|||||||||||||||
|
故障状态时
|
全开、全关、自锁保位
|
|||||||||||||||
|
流量特性
|
直线、等百分比
|
|||||||||||||||
|
允许泄漏量(L/h)
|
单密封符合IV级 小于阀的额定容量×10-4
双密封符合Ⅲ级 小于阀的额定容量×10-3 |
|||||||||||||||
|
固有可调比R
|
50:1
|
|||||||||||||||
|
公称压力PN(MPa)
|
1.6 2.5 4.0 6.4
|
|||||||||||||||

|
公称通径(mm)
|
25
|
32
|
40
|
50
|
65
|
80
|
100
|
125
|
150
|
200
|
250
|
300
|
|||
|
L(mm)
|
PN1.6MPa
|
185
|
205
|
220
|
254
|
275
|
300
|
350
|
410
|
451
|
600
|
670
|
735
|
||
|
PN4.0MPa
|
200
|
210
|
235
|
267
|
292
|
317
|
368
|
425
|
473
|
615
|
685
|
750
|
|||
|
PN6.4MPa
|
210
|
220
|
251
|
286
|
311
|
337
|
394
|
440
|
508
|
630
|
700
|
765
|
|||
|
H1(mm)
|
PN1.6MPa
|
58
|
68
|
73
|
80
|
90
|
98
|
108
|
123
|
140
|
168
|
203
|
230
|
||
|
H1(mm)
|
PN4.0MPa
|
58
|
68
|
73
|
80
|
90
|
98
|
115
|
135
|
150
|
188
|
223
|
255
|
||
|
H1(mm)
|
PN6.4MPa
|
68
|
75
|
83
|
88
|
100
|
105
|
125
|
148
|
170
|
203
|
235
|
265
|
||
|
配PSL
|
H(mm)≈
|
常温型
|
614
|
630
|
635
|
640
|
712
|
739
|
761
|
930
|
940
|
960
|
1165
|
1185
|
|
|
高温型
|
765
|
788
|
790
|
800
|
895
|
940
|
970
|
1150
|
1190
|
1220
|
1470
|
1490
|
|||
|
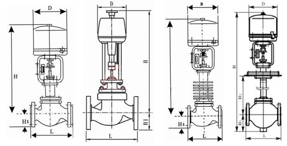
D(mm)
|
176
|
225
|
|||||||||||||
|
配361L
|
H(mm)≈
|
常温型
|
665
|
725
|
731
|
755
|
957
|
980
|
1028
|
1329
|
1348
|
1423
|
1621
|
1734
|
|
|
高温型
|
820
|
870
|
895
|
910
|
1125
|
1150
|
1195
|
1410
|
1586
|
1667
|
1884
|
2000
|
|||
|
D(mm)
|
225
|
310
|
|||||||||||||
|
低温型
|
-100℃
|
H2
|
500
|
600
|
700
|
|
|
||||||||
|
H≈
|
1120
|
1310
|
1320
|
1330
|
1460
|
1478
|
1497
|
1850
|
1860
|
1900
|
|
|
|||